Adventure Vessel Project
TYPE Explorer / Adventure Vessel Project
DIMENSIONS Length O.A. 71.80 m Beam 13 m
Draft !
TONNAGE 1658 GT !
YEAR BUILT 1970 (Re-fit 2006 and 2015 ongoing ca. 80% completed)
BUILDER Built in Norway for Norwegian Government
CONSTRUCTION Steel
MACHINERY
MAIN ENGINE Roll Royce / Bergen Type KRMB-9 Motor 7723 1655 kW (1986 )
GEAR BOX Ulstein Type 600AGC, SN 1279, Red 50:1, Year (1986) !
SHAFTS & PROPELLERS Original shaft and 4 blade VP propeller !
SPEEDS Maximum speed 14.5 kn Cruising speed 11-12 kn
AUXILIARY MACHINERY
GENERATORS CAT C32 590 BkW
CAT C32 874 BkW
CAT C18 492 BkW
TANK CAPACITIES (approximate)
FUEL 350 m
WATER 88 m3
LUBE OIL 4,7 m3
HYDR OIL 7 m3
DIRTY LUB OIL 2,3 m3
GREY WATER 10 m3
BLACK WATER 65 m3
ANCILLARY EQUIPMENT
BOW THRUSTER 1
STERN THRUSTER 1
WATER PRODUCTION
1 x IDROMAR MC 12S 12.000 L / 24 H
1 x Alfa Laval Vac dist system > 24.000 L / 24 H
FUEL SEPARATOR Alfa Laval
OIL/WATER SEPARATOR Alfa Laval
FIRE PUMP Desmi NSL80-215/D02
BOILERS Osby Parca TPIO 225
SEWAGE TREATMENT DVZ-Group DVZ-JZR-50 Biomaster
AIRCONDITIONING 2 x DAIKIN HSA197QS11YA 2 x NOVENCO Marine Units
SAFETY & SECURITY EQUIPMENT
FIRE FIGHTING Emergency fire pump Grundfors
Heli fire pump Grundfors
Full set of various extinguishers, fire fighting suits,
blankets, alarms, detectors etc !
LIFE SAVING APPLIANCES 45 x Viking Immersion suits one size
8 x Viking Immersion suites ( insulated )
55 x SOLAS Viking life jackets
Lifeboys, etc
6 x Viking Life raft 25 DK A Pack !!
NAVIGATION EQUIPMENT
SATCOM TBC
VHF DSC RADIOTELEPHONES 2 x Sailor RT6222 !
VHF for Heli ops Jotron TR 810 !
SOUND RECEPTION SYST. Phontec SR 8200 !
BRIDGE NAV WATCH
ALARM SYSTEM BNWAS BW-800
SHIP SECURITY ALARM SYST. Sailor 6120 SSA with GLONASS
A.I.S. SAAB R5 SOLID
MAGNETIC COMPASS NAVIPOL Binnacle w/ Jupiter compass
GYRO COMPASS Navigat X Mk1
AUTOMATIC PILOT TBC
SPEED LOG
SINGLE AXIS DOPPLER NAVIKNOT 450D
SIGNALLING Tyfon Signal controller Ti98
SONAR Seabat 7125 Multibeam
ECHO SOUNDER Skipper GDS 101
RADAR S Band Visionmaster FT
X Band Visionmaster FT
Ice Radar SIGMA 6
ECDIS Sperry Visionmaster ECDIS-E
GPS Koden KJB 920
NAVTEX SAILOR 6390
METEO Unicont SPb Periscope Weather System Indicator
DECK EQUIPMENT
ANCHOR WINDLASS 2 Units Bow 2 Units Aft !
PASSERELLE SOLAS approved 6 m Accommodation gangway Portable gangway
A-FRAME SWL 8 tons
CRANES Heila HLRM 25-3S
Heila HLRM 65-4S
HELICOPTER LANDING PAD On Bow
Two trolleys for submersibles
Various winches, capstans
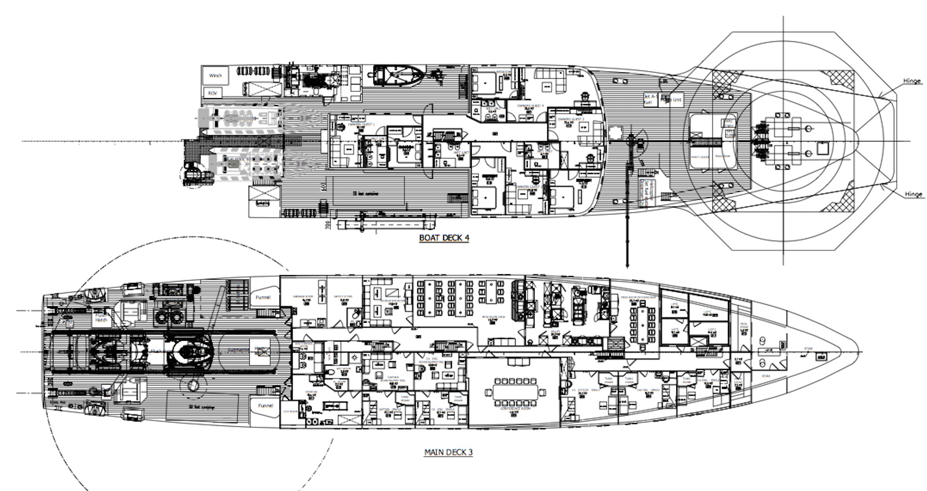
ACCOMMODATION !!
Accommodation for up to 8 guests in 4 cabins, and up to 38 crew in 23 crew cabins
OWNER AND GUESTS 4 large suites with living and bedroom on bridge deck !
CREW 8 x Single and 15 x Double cabins !
GALLEY, HOSPITAL, SAUNA, CREW MESS OFFICER’S MESS, CONFERENCE ROOM, GYM,
TV ROOM, SUN LOUNGE/DINING ROOM !
REMARKS
The transformation to a Luxury Adventure Vessel was halted after several millions of Euros had been spent. Almost everything apart from main engine and the drive train has been replaced including electric systems, pumps, piping and hydraulics. She can be now begin the final stages of her rebuild. Approximately 80% total has been completed.
Disclaimer:
The Company offers the details of this vessel in good faith but cannot guarantee or warrant the accuracy of this information nor warrant the condition of the vessel. A buyer should instruct his agents, or his surveyors, to investigate such details as the buyer desires validated. This vessel is offered subject to prior sale, price change, or withdrawal without notice.
Ref: COMINT2027
€00,000.00








